HOME  /NEWS ROOM  / CLESCRANE Successfully Secures Order, Providing Customized Electric Hoist Upgrade Solution for Argentine Steel Manufacturer

CLESCRANE Successfully Secures Order, Providing Customized Electric Hoist Upgrade Solution for Argentine Steel Manufacturer

Company News - Feb 17, 2026
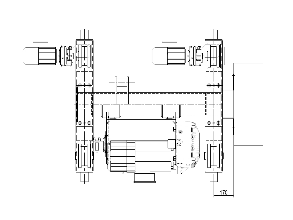
An Argentine steel manufacturer, facing frequent failures and low efficiency with their existing MDS overhead crane, decided to replace the electric hoist. CLESCRANE provided a customized 5-ton double girder wire rope hoist, effectively solving the issues of high failure rates and low efficiency.

Considering the limited space in the facility, the equipment was specially designed with a same-direction trolley drive, and the electrical box was positioned 170mm from the hoist end beam, perfectly meeting the customer's requirements.



Have a Project?
We would love to help you.
Online survey questionnaire

GET IN TOUCH

Product:
*
Country:
Name:
*
Email:
*
Whatsapp:
TEL:
Please call me back
Company:
*
Job title:
*
Project Location:
More Specifics:

SOFTWARE ACCESS REQUEST FORM

Name:
*
Email:
*
Country:
Company:
*
Job title:
TEL:
Please call me back